Autor |
Zpráva |
Suzan
Host


Věk: 49
Založen: 2.10.2005
Příspěvky: 181
Bydliště: Nové Zahradní Město D

|
|
nicola napsala:
|
Suzan napsala:
|
tak to my při podpisu smlouvy o budoucí kupní nevěděli ještě vůbec nic
|
My sme to mali ako dodatok, aj tak sa to trosku zmenilo, sporak je tam kde mal byt, ale mycka a drez trosku inde... V kuchynskom studiu nam urobili plany rozvodov pre stavbu a ostatne veci sme riesili tak za rok...
|
Když to my troubelíni nestíhali obíhat kuchyňská studia a tak... A tak jsme to nechali až na teď a je to docela škoda |
|
|
|
|
|
 |
     |
 |
lusvec
Domácí

Založen: 27.5.2005
Příspěvky: 942
Bydliště: Záběhlice A

|
|
Mě to vysvětlili tak že pokud je stěna nosná (t.j. v našem případě železobetonová) tak jsou trubky buď v tzv. přizdívce nebo mimo stěnu. U bytů kde je stěna cihlová jsou trubky ve zdi. |
|
|
|
|
|
|
    |
 |
Suzan
Host


Věk: 49
Založen: 2.10.2005
Příspěvky: 181
Bydliště: Nové Zahradní Město D

|
|
lusvec napsal:
|
Mě to vysvětlili tak že pokud je stěna nosná (t.j. v našem případě železobetonová) tak jsou trubky buď v tzv. přizdívce nebo mimo stěnu. U bytů kde je stěna cihlová jsou trubky ve zdi.
|
To my máme cihlovou zeď po třech stranách bytu a dokonce i tu, kde je kuchyň oddělená od koupelny a stejně máme vývody před zdí |
|
|
|
|
|
 |
     |
 |
lusvec
Domácí

Založen: 27.5.2005
Příspěvky: 942
Bydliště: Záběhlice A

|
|
Podívej se na foto ze stavby domu A - ono to jde, nevím proč to teď dělaj jinak. |
roury01.jpg |
Komentář: |
|
Velikost: |
125.13 kB |
Zobrazeno: |
439 krát |

|
|
|
|
|
|
|
    |
 |
vaclav.vesely
Spolubydlící


Věk: 49
Založen: 13.11.2006
Příspěvky: 451
Bydliště: Praha

|
|
Důvod je, myslím, zřejmý. Už jsem se přesvědčil, že pokud něco není ve smlouvě explicitně uvedno, vyřeší to CG tím pro ně nejsnažším způsobem, bez ohledu na to, že existuje běžný lepší způsob.
Kdyby se alespoň zeptali a třeba si to i nechali zaplatit jako nadstandard. Takhle musí mít člověk po celou dobu stavby oči na šťopkách, protože spousta věcí považuje buď za samozřejmé, nebo o nich naopak nic neví a že je to blbě se dozví až někoho jiného, například od výrobce kuchyně. |
|
|
|
|
|
 |
    |
 |
Suzan
Host


Věk: 49
Založen: 2.10.2005
Příspěvky: 181
Bydliště: Nové Zahradní Město D

|
|
lusvec napsal:
|
Podívej se na foto ze stavby domu A - ono to jde, nevím proč to teď dělaj jinak.
|
U nás je možná problém v tom, že ona cihlová zeď je mezi koupelnou a kuchyní... což může být problém zasekávat z jedné strany trubky v koupelně a z druhé strany v kuchyni. Ale moc tomu nerozumím... |
|
|
|
|
|
 |
     |
 |
lusvec
Domácí

Založen: 27.5.2005
Příspěvky: 942
Bydliště: Záběhlice A

|
|
Nevidím problém v tom dát trubky jenom z jedný strany a skrze zeď prostrčit vývody na druhou stranu tam kde to je potřeba. |
|
|
|
|
|
|
    |
 |
Radka
Kolemjdoucí

Založen: 5.12.2005
Příspěvky: 56

|
|
lusvec napsal:
|
Mě to vysvětlili tak že pokud je stěna nosná (t.j. v našem případě železobetonová) tak jsou trubky buď v tzv. přizdívce nebo mimo stěnu. U bytů kde je stěna cihlová jsou trubky ve zdi.
|
Ja mam stenu cihlovou a mam taky trubky pred stenou. Kdyz jsem se nad tim zacatkem roku podivovala, stavebni dozor mi vysvetlil, ze pokud jde o cihlovou stenu, ktera sousedi s jinym bytem, nedavaji se trubky do zdi kvuli hlukove izolaci, ktera by tak byla porusena.  |
|
|
|
|
|
|
    |
 |
JoHnY
Administrator


Věk: 48
Založen: 18.10.2005
Příspěvky: 3141
Bydliště: Praha - Bratislava - Závažná Poruba

|
|
Radka napsal(a):
|
lusvec napsal:
|
Mě to vysvětlili tak že pokud je stěna nosná (t.j. v našem případě železobetonová) tak jsou trubky buď v tzv. přizdívce nebo mimo stěnu. U bytů kde je stěna cihlová jsou trubky ve zdi.
|
Ja mam stenu cihlovou a mam taky trubky pred stenou. Kdyz jsem se nad tim zacatkem roku podivovala, stavebni dozor mi vysvetlil, ze pokud jde o cihlovou stenu, ktera sousedi s jinym bytem, nedavaji se trubky do zdi kvuli hlukove izolaci, ktera by tak byla porusena.
|
ano aj mne nieco take hovorili |
|
|
|
_________________ JoHnY
|
|
 |
      |
 |
alkonius
Moderator


Založen: 1.3.2006
Příspěvky: 955
Bydliště: NZM - B

|
|
|
       |
 |
JoHnY
Administrator


Věk: 48
Založen: 18.10.2005
Příspěvky: 3141
Bydliště: Praha - Bratislava - Závažná Poruba

|
|
alkonius napsal:
|
Asi proto ze v ABC reklamujeme hluk v bytech
|
co je ABC? |
|
|
|
_________________ JoHnY
|
|
 |
      |
 |
jája
Kolemjdoucí


Věk: 48
Založen: 18.1.2006
Příspěvky: 91
Bydliště: NZM C

|
|
NZM domy A B C  |
|
|
|
|
|
 |
    |
 |
alkonius
Moderator


Založen: 1.3.2006
Příspěvky: 955
Bydliště: NZM - B

|
|
|
       |
 |
JoHnY
Administrator


Věk: 48
Založen: 18.10.2005
Příspěvky: 3141
Bydliště: Praha - Bratislava - Závažná Poruba

|
|
alkonius napsal:
|
jája napsala:
|
NZM domy A B C
|
pisi jednicku s hvezdickou
|
no ale Radka pisala ze jej to hovorili zaciatkom roka, to este skoro nikto nebyval a este sa nic nereklamovalo... |
|
|
|
_________________ JoHnY
|
|
 |
      |
 |
AlíaTom
Spolubydlící


Založen: 6.9.2005
Příspěvky: 404
Bydliště: HOSTIVICE D

|
|
Nám to vysvětlili stajně jako Radce - nezasekávají kvůli hlukové izolaci ve vedlejším bytě! Jeden z návrhů byl, že bychom si tam mohli nechat udělat přizdívku - další. To bychom měli ten byt z 1/3 obehnán přizdívkama a zase o nějakej ten metr menší. Snad si s tím v kch. studiu poradí! |
|
|
|
|
|
|
    |
 |
vaclav.vesely
Spolubydlící


Věk: 49
Založen: 13.11.2006
Příspěvky: 451
Bydliště: Praha

|
|
Tak jsem mluvil zas s jiným kuchyňářem, a ten tvrdil, že nezasekané trubky jsou zcela normální a že za spodními skříňkami se dělá mezera (standardně 5 cm) na různé kabely a právě ty trubky. Takže trubky mimo zeď za linkou by obecně problém být neměl. Kdo se v tom má vyznat, když každý, koho se zeptám, tvrdí něco jiného. |
|
|
|
|
|
 |
    |
 |
RiskyNet
Kolemjdoucí

Věk: 49
Založen: 15.11.2006
Příspěvky: 45
Bydliště: NZM E

|
|
My máme trubky kolem zdi také a máme s tím dost problém. Musely jsme upustit od původní kuchyně kterou jsme měly vybranou (chtěli jsme myčák na levé straně) a budeme muset trubky říznout hned u začátku, předělat budíky, vývody atd. protože trubky nám vedou kolem celého obvodu kuchyňského koutu a neměli bychom kvůli úpravám linky kuchyň, ale nepoužitelný sajrajt...
Mezera za linkou se prý dělá standartně 3.5cm (60 deska, 56.5 skříňky) ale tyto trubky mají 8cm!
Nemám bohužel v elektronické podobě půdorysy původní verze kuchyně jak by vypadala kdybychom ji chtěli zachovat, ale zkusim nascanovat. Tak zatím jen foto, jak u nás vypadají trubky... |
trubky.jpg |
Komentář: |
|
Velikost: |
565.91 kB |
Zobrazeno: |
398 krát |

|
|
|
|
|
|
 |
    |
 |
dcom
Starousedlík


Věk: 55
Založen: 25.3.2006
Příspěvky: 1632
Bydliště: Prague, CZ

|
|
RiskyNet napsal:
|
My máme trubky kolem zdi také a máme s tím dost problém. Musely jsme upustit od původní kuchyně kterou jsme měly vybranou (chtěli jsme myčák na levé straně) a budeme muset trubky říznout hned u začátku, předělat budíky, vývody atd. protože trubky nám vedou kolem celého obvodu kuchyňského koutu a neměli bychom kvůli úpravám linky kuchyň, ale nepoužitelný sajrajt...
Mezera za linkou se prý dělá standartně 3.5cm (60 deska, 56.5 skříňky) ale tyto trubky mají 8cm!
Nemám bohužel v elektronické podobě půdorysy původní verze kuchyně jak by vypadala kdybychom ji chtěli zachovat, ale zkusim nascanovat. Tak zatím jen foto, jak u nás vypadají trubky...
|
... zhish co to je za hastrošárnu? Já mám teda trubky normálně ve zdi a ven mi koukaj akorát vývody ...  |
|
|
|
|
|
 |
    |
 |
RiskyNet
Kolemjdoucí

Věk: 49
Založen: 15.11.2006
Příspěvky: 45
Bydliště: NZM E

|
|
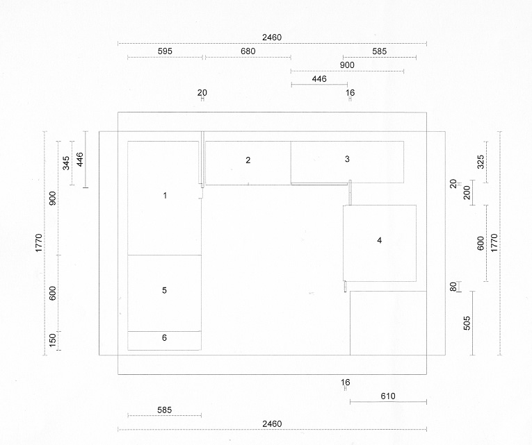
pudorys puvodni verze, kdy dřez a trouba byly původně prohozený s úpravama kvůli těm trubkám...
Apropo dneska jsme podepsali smlouvu na kuchyň ^^ bude vypadat asi takto (viz druhý obrázek) je to ještě lepší než původní verze a hlavně se vleze  |
proweb.jpg |
Komentář: |
|
Velikost: |
255.38 kB |
Zobrazeno: |
376 krát |

|
pudorys_stara.jpg |
Komentář: |
|
Velikost: |
63.51 kB |
Zobrazeno: |
374 krát |

|
|
|
|
|
|
 |
    |
 |
RiskyNet
Kolemjdoucí

Věk: 49
Založen: 15.11.2006
Příspěvky: 45
Bydliště: NZM E

|
|
dcom napsal:
|
RiskyNet napsal:
|
My máme trubky kolem zdi také a máme s tím dost problém. Musely jsme upustit od původní kuchyně kterou jsme měly vybranou (chtěli jsme myčák na levé straně) a budeme muset trubky říznout hned u začátku, předělat budíky, vývody atd. protože trubky nám vedou kolem celého obvodu kuchyňského koutu a neměli bychom kvůli úpravám linky kuchyň, ale nepoužitelný sajrajt...
Mezera za linkou se prý dělá standartně 3.5cm (60 deska, 56.5 skříňky) ale tyto trubky mají 8cm!
Nemám bohužel v elektronické podobě půdorysy původní verze kuchyně jak by vypadala kdybychom ji chtěli zachovat, ale zkusim nascanovat. Tak zatím jen foto, jak u nás vypadají trubky...
|
... zhish co to je za hastrošárnu? Já mám teda trubky normálně ve zdi a ven mi koukaj akorát vývody ...
|
no, co ti budu povidat, taky jsme se hrozne divily ja neco takovyho teda nikdy nevidel. Ale ureze se to hned za vyvodem a schova za linku a vse bude ok jen skoda tech penez navic |
|
|
|
|
|
 |
    |
 |
AlíaTom
Spolubydlící


Založen: 6.9.2005
Příspěvky: 404
Bydliště: HOSTIVICE D

|
|
Obdobnou "opičárnu" budeme mít určitě taky!!!  |
|
|
|
|
|
|
    |
 |
Milan V.
Administrator


Založen: 25.4.2005
Příspěvky: 2123
Bydliště: NZM A

|
|
Suzan napsala:
|
Já bych řekla, že vývody před zdí mají asi všichni. Zatím jsem neslyšela, že by je měl někdo zasekané ve zdi.
My dokonce měli elektro rozvody tak super dělané, že jsme je všechny museli nechat předělat. Foto mám, ale zatím v nezmenšené podobě, tudíž nemohu přiložit
|
My máme vše zasekané do zdi, ale rovněž je vše nestandardní a na základě dodatku ke smlouvě ...
lusvec napsal:
|
Nevidím problém v tom dát trubky jenom z jedný strany a skrze zeď prostrčit vývody na druhou stranu tam kde to je potřeba.
|
Také si myslím ... |
|
|
|
Naposledy upravil Milan V. dne 30.12.2006, 16:12, celkově upraveno 1 krát. |
|
|
     |
 |
lusvec
Domácí

Založen: 27.5.2005
Příspěvky: 942
Bydliště: Záběhlice A

|
|
RiskyNet napsal:
|
Mezera za linkou se prý dělá standartně 3.5cm (60 deska, 56.5 skříňky) ale tyto trubky mají 8cm!
Nemám bohužel v elektronické podobě půdorysy původní verze kuchyně jak by vypadala kdybychom ji chtěli zachovat, ale zkusim nascanovat. Tak zatím jen foto, jak u nás vypadají trubky...
|
Otázka čistě ze zvědavosti: proč máš měřáky takhle na trubkách a ne v šachtě jako ostatní? Takhle to vypadá že až přijdou z vodáren podívat se kolik žes to spotřeboval tak budeš rozebírat kuchyň |
|
|
|
|
|
|
    |
 |
RiskyNet
Kolemjdoucí

Věk: 49
Založen: 15.11.2006
Příspěvky: 45
Bydliště: NZM E

|
|
lusvec napsal:
|
RiskyNet napsal:
|
Mezera za linkou se prý dělá standartně 3.5cm (60 deska, 56.5 skříňky) ale tyto trubky mají 8cm!
Nemám bohužel v elektronické podobě půdorysy původní verze kuchyně jak by vypadala kdybychom ji chtěli zachovat, ale zkusim nascanovat. Tak zatím jen foto, jak u nás vypadají trubky...
|
Otázka čistě ze zvědavosti: proč máš měřáky takhle na trubkách a ne v šachtě jako ostatní? Takhle to vypadá že až přijdou z vodáren podívat se kolik žes to spotřeboval tak budeš rozebírat kuchyň
|
To je otazka spise na autora tehle masinerie, ja vubec netusim... Ja si je tam nemontoval. Budu je muset dat nejak tak, aby na ne slo videt skrze skrinku pod drezem, jinak nevim. |
|
|
|
|
|
 |
    |
 |
AlíaTom
Spolubydlící


Založen: 6.9.2005
Příspěvky: 404
Bydliště: HOSTIVICE D

|
|
Ryze ženský dotaz kde by měli správně ty budíky být. Aby nepřekážely a nemusela se kvůli nim "rozmontovávat" kuchyň.
RiskyNet (a určitě nejen on) bude muset předělávat návrh kuchyě nejen kvůli trubkám, ale ještě kvůli budíkům, není to blbost??? |
|
|
|
|
|
|
    |
 |
lusvec
Domácí

Založen: 27.5.2005
Příspěvky: 942
Bydliště: Záběhlice A

|
|
Já je mám v šachtě tam co vedou stoupačky a před nima takový plechový dvířka. Dát to jinam pokládám za pitomost. |
|
|
|
|
|
|
    |
 |
ThomasPRG
Spolubydlící

Věk: 45
Založen: 2.1.2007
Příspěvky: 302
Bydliště: Mikanova 1, NZM E

|
|
Mate nekdo nejaky typ na kuchynske studio? Ja zkousel Sykoru, ale kuchynsky kout za ctvrt mega neprichazi v uvahu a Hanak mi prijde neochotny, i kdyz vyjde o polovinu levneji ... Koryna pry taky neni nejlevnejsi ... A ja uz pres mesic bydlim bez kuchyne, brrrr ...
Diky za typy  |
|
|
|
|
|
 |
      |
 |
JoHnY
Administrator


Věk: 48
Založen: 18.10.2005
Příspěvky: 3141
Bydliště: Praha - Bratislava - Závažná Poruba

|
|
lusvec napsal:
|
Já je mám v šachtě tam co vedou stoupačky a před nima takový plechový dvířka. Dát to jinam pokládám za pitomost.
|
napriklad u mna ide voda do kuchyne zo stupacky co je v kuchyni (v kupelni ide z druhej), a kovove dvierka by sa tam nedali nikam dat, resp. dali ale vyzeralo by to dost blbo, mat vedla drezu dvierka do stupacky ale aj tak som zvedavy ako to vymyslia, voda do umyvacky totiz pojde z inej strany stupacky ako do drezu takze uz som pripraveny na to ze to bude cele uplne nahovno. |
|
|
|
_________________ JoHnY
|
|
 |
      |
 |
kolysta
Master moderator


Věk: 50
Založen: 28.11.2006
Příspěvky: 1304

|
|
ThomasPRG napsal:
|
Mate nekdo nejaky typ na kuchynske studio? Ja zkousel Sykoru, ale kuchynsky kout za ctvrt mega neprichazi v uvahu a Hanak mi prijde neochotny, i kdyz vyjde o polovinu levneji ... Koryna pry taky neni nejlevnejsi ... A ja uz pres mesic bydlim bez kuchyne, brrrr ...
Diky za typy
|
pokud chces neco peknyho, tak tohle www.maxxkuchyne.cz
vyplati se tam dojet, nechat si udelat navrh a pak hoodne smlouvat
ja stahnul cenu natrikrat asi o 15kKc, ale nakonec jsem to nevzal
doporucili mi to pratele, kteri od nich kuchyn maji - vypada bozsky
ale kdyz jsem videl, ze mechanizmus pojezdu supliku je uplne stejny, jako ma IKEA (stejny ma mimochodem i Koryna a patrne i ostatni), spokojil jsem se s IKEA
holt to lamino neni uplne to co bych si predstavoval, ale za ty prachy...
pokud mas trochu sikovny ruce, muzu doporucit www.nabytekservis.cz
tam maji tak neuveritelny ceny uplne vseho, ze jsem se nestacil divit
bral jsem tam kuch. desku (obrovskej vyber), uchytky dvirek, barovou nohu, drzak kravat do skrine atd... |
|
|
|
|
|
 |
     |
 |
ThomasPRG
Spolubydlící

Věk: 45
Založen: 2.1.2007
Příspěvky: 302
Bydliště: Mikanova 1, NZM E

|
|
Diky za info, hned zitra to prubnu. Abych pravdu rekl, nabytek z IKEA, i kdyz neni perfektni, tak mi vyhovuje. Mam skoro cely byt z IKEA a zatim se mi to libi. Kuchyn bych si tam taky vybral, ale vymyslel jsem si bar a jelikoz to chci mit vsechno sladene, necham si to udelat od firmy.
Lamino nic moc, ale za pet let bude treba v mode kuchyn ze skla nebo plechu a tak to nebude az tolik mrzet
Jeste jednou dikes! |
|
|
|
|
|
 |
      |
 |
|