| Autor |
Zpráva |
Michal
Podnájemník

Založen: 24.2.2006
Příspěvky: 559

|
|
| hern napsal:
|
|
mapy a více na stránkách Trojmezí
|
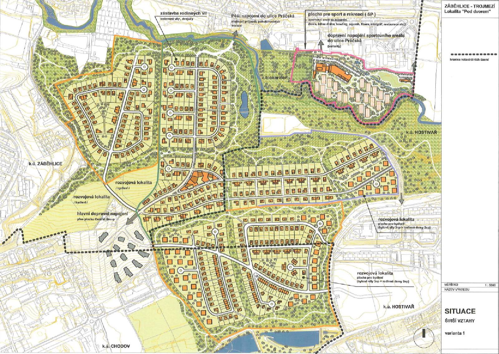
tak jsme si stáhnul ty dokumenty, mezi efkem a sparem je plánováno P+R parkoviště a není tam plánovaná žádná spojovací komunikace Košíku a Švehlovy, tato spojovací komunikace je plánovaná až za Sparem (směrem od NZM) |
| plan.pdf |
| Komentář: |
|
 Soubory |
| Soubor: |
plan.pdf |
| Velikost: |
256.63 kB |
| Staženo: |
777 krát |
|
|
|
|
|
|
|
    |
 |
Milan V.
Administrator


Založen: 25.4.2005
Příspěvky: 2123
Bydliště: NZM A

|
|
Stále žádný dobrovolník za těch pár dní, co jsem tady nebyl?!?
To P+R parkoviště bylo v těchto místech plánováno od počátku, co jsem dostal do ruky nějaké plány rozvoje lokality a jejího okolí, odhaduji někdy v roce 2004, to zůstalo pořád stejné kvůli plánované stanici metra v roce xy ... |
|
|
|
|
|
|
|
| |
     |
 |
Michal
Podnájemník

Založen: 24.2.2006
Příspěvky: 559

|
|
| Milan V. napsal(a):
|
|
To P+R parkoviště bylo v těchto místech plánováno od počátku, co jsem dostal do ruky nějaké plány rozvoje lokality a jejího okolí, odhaduji někdy v roce 2004, to zůstalo pořád stejné kvůli plánované stanici metra v roce xy ...
|
já vím, ale zazněly tady názory, že v tom pásu by snad mohla být ta silnice... |
|
|
|
|
|
|
|
|
    |
 |
malina
Spolubydlící


Věk: 74
Založen: 20.2.2006
Příspěvky: 369
Bydliště: NZM B

|
|
| to nebyly naše názory nýbrž připomínky městských částí k územnímu plánu, které předložily v dubnu. Co se z toho bude realizovat to je ve hvězdách a kapsách pánů radních |
|
|
|
|
|
|
|
 |
    |
 |
Milan V.
Administrator


Založen: 25.4.2005
Příspěvky: 2123
Bydliště: NZM A

|
|
| Jestli jsem to dobře pochopil, tak ta silnice povede někde až za Parkem Hostivař ze Švehlovy ul. a nad úrovní terénu, něco jako třeba tramvajová trať na barrandovské sídliště ... Nějak si to pořád dost dobře nedokážu představit ... |
|
|
|
|
Naposledy upravil Milan V. dne 2.6.2008, 20:40, celkově upraveno 1 krát. |
|
| |
     |
 |
malina
Spolubydlící


Věk: 74
Založen: 20.2.2006
Příspěvky: 369
Bydliště: NZM B

|
|
| já taky ne, třeba jsme to špatně pochopili, nevim. Dnes jsem opět dostala z Toulcova dvora pozvánku na nějakou schůzi o životním prostředí Botiče - měl tam být radní Štěpánek a nějací ekologové, ale bohužel to rozesílali až dnes a schůze byla taky dnes. Kdo by měl ale zájem přímo s nimi spolupracovat nebo dostávat maily o novinkách, stačí se tam zaregistrovat. Bude vám to chodit automaticky. |
|
|
|
|
|
|
|
 |
    |
 |
malina
Spolubydlící


Věk: 74
Založen: 20.2.2006
Příspěvky: 369
Bydliště: NZM B

|
|
Omlouvám se za (v některých případech) nevyžádaný e-mail...
--------------------------------------------------------------------------------
PETICE "ZA ZELENÉ TROJMEZÍ"
--------------------------------------------------------------------------------
Jak již možná někteří z vás víte, bojujeme nyní s aktuální hrozbou, že se v přírodní lokalitě Trojmezí v těsné blízkosti Toulcova dvora změní územní plán a velká část tohoto území se otevře možné výstavbě.
Přestože o tomto aktuálním problému víme až od tohoto pondělí a záměr bude projednáván již za 13 dní, rozhodli jsme se mu čelit prostřednictvím petice. Petice tedy bude muset být ukončena k úterý 24.3.09, kdy musí být všechny petiční archy na Toulcově dvoře abychom vše stihli zúřadovat. ZBÝVÁ NÁM TEDY POUZE 11 DNÍ!!!
CO MŮŽETE UDĚLAT VY?
Informovat všechny vaše známé, o kterých si myslíte, že by je tato kauza mohla zajímat.
Vytisknout petici a podepsat jí, dát jí podepsat vaší rodině (jen lidé nad 18 let, nemusí být občany Prahy), známým, spolupracovníkům, sousedům ... a dodat osobně do připravených schránek na Toulcově dvoře, či poštou na adresu: Ing. Jan Chvátal, Středisko ekologické výchovy hl. města Prahy Toulcův dvůr, Kubatova 1, 102 00 Praha 10, tak aby došly do úterý 24.3. 2009!.
Petici budete moci také odevzdat na sběrných místech v okolních sídlištích, která budou označena plakátem. Seznam těchto míst bude zveřejněn na http://www.toulcuvdvur.cz/trojmezi.
Pokud máte možnost sbírat plné podpisové archy ve svém obchodě či jiném veřejnosti přístupném místě , ozvěte se nám prosím na chvatal@toulcuvdvur.cz či na tel. 603 289 057.
Vytisknout přiložený plakát a vyvěsit je ve svém bydlišti v okolí dané lokality, v práci, ve škole, ve školce...
Přijďte se podívat na projednávání této věci na jednání zastupitelstva dne 26.3.2009.
Více aktuálních informací o tomto problému naleznete na: http://www.toulcuvdvur.cz/trojmezi/aktuality.html.
Chcete-li dostávat aktuální informace o vývoji kauzy, zaregistrujte se do mailinglistu na http://www.toulcuvdvur.cz/trojmezi/info.html
Předem děkujeme za pomoc v této naléhavé věci
--
Ing. Jan Chvátal
předseda ZČ HB Botič
Středisko ekologické výchovy Hl. m. Prahy Toulcův dvůr
Kubatova 1/32
102 00 Praha 10 - Hostivař
Tel: 271 750 556
Tel: 271 750 548 l. 12
Fax: 271 750 548
www.toulcuvdvur.cz
__________ Informace od NOD32 3935 (20090313) __________
Tato zprava byla proverena antivirovym systemem NOD32.
http://www.nod32.cz |
|
|
|
|
|
|
|
 |
    |
 |
malina
Spolubydlící


Věk: 74
Založen: 20.2.2006
Příspěvky: 369
Bydliště: NZM B

|
|
| přišla mi tato zpráva z Toulcova dvora, tak jsem ji celou přenesla sem, aby o tom vědělo co nejvíc lidí a mohlo případně petici podpořit. Když si pomyslím,že by nám tady vykáceli třešnovku a paneláky by sahaly až někam na Jižní město je mi ouvej. Je to tady široko-daleko jediný kousek zeleně kromě přehrady a nechtěla bych o něj přijít. |
|
|
|
|
|
|
|
 |
    |
 |
Michal
Podnájemník

Založen: 24.2.2006
Příspěvky: 559

|
|
| tak to je slušná zástavba... |
| podnet_02.jpg |
| Komentář: |
|
| Velikost: |
478.83 kB |
| Zobrazeno: |
729 krát |

|
|
|
|
|
|
|
|
    |
 |
barberry.pha
Kolemjdoucí

Založen: 28.1.2008
Příspěvky: 95

|
|
pomuze mi nekdo zorientovat v te mapce kde je nase lokalita?  |
|
|
|
|
|
|
|
|
    |
 |
barberry.pha
Kolemjdoucí

Založen: 28.1.2008
Příspěvky: 95

|
|
| tak uz se mi podarilo se v tom zorientovat .. tady toto prece nemuzou povolit .. to bude neco strasnyho .. a nevite jestli planuji stavet i neco mezi domem F a intersparem? |
|
|
|
|
|
|
|
|
    |
 |
stefanplt
Kolemjdoucí


Založen: 27.6.2006
Příspěvky: 28

|
|
| Sice z toho také nemám velkou radost, na druhou stranu se však Praha stále rozvíjí a někde se prostě stavět musí, a tato volná plocha k tomu přímo vybízí. Jedna postarší paní se mi postěžovala, že dřív na místě NZM byly skleníky, které zásobovaly čerstvou zeleninou celé okolí, a jen díky tomu, že už nejsou, my teď máme kde bydlet. Navíc by se podle plánku nemělo jednat o paneláky, ale o rodinné domky. |
|
|
|
|
|
|
|
| |
    |
 |
Aarfy
Kolemjdoucí

Založen: 8.11.2006
Příspěvky: 75

|
|
no já nemám vůbec nic proti zástavbě těch rozlehlých polí kolem Košíku ap. Spíš bych to i uvítal. Ale stavět přímo u Botiče (v oblasti přírodního parku) mi přijde jako nehorázné zvěrstvo.
Jako by Praha měla podobných oblastí na rozdávání. |
|
|
|
|
|
|
|
|
    |
 |
malina
Spolubydlící


Věk: 74
Založen: 20.2.2006
Příspěvky: 369
Bydliště: NZM B

|
|
pro všechny, kteří chtějí zachovat aspon část zeleně tady v okolí PETICE!!!
Vážení přátelé,
dnes přibylo první z podpisových a distribučních míst petice "Za zelené Trojmezí", ležící mimo Toulcův dvůr. Můžete si zde vyzvednout prázdné podpisové archy, petici na místě podepsat, či odevzdat již vyplněné archy.
Jedná se o Cukrárnu, Vajdova 1047/25, Praha 10 - sídliště Košík, otevřeno denně 9.00-18.00
NALÉHAVĚ SHÁNÍME DALŠÍ PODPISOVÁ A DISTRIBUČNÍ MÍSTA !
v Praze 10, 11 a 15
Podpisové a distribuční místo by mělo být:
- veřejně přístupné (obchod, škola, vrátnice atd..)
- označeno plakátem
- měly by na něm být k dispozici k rozebrání vytisknuté petiční archy a plakáty (případně dodáme)
- mělo by na něm být možnost petici přímo na místě podepsat
- mělo by na něm být možno odevzdat již vyplněný petiční arch
Pokud se rozhodnete, že takové místo u Vás zřídíte, napiště mi prosím:
- označení místa (např. název obchodu, školy)
- adresu
- dobu ve které jetoto místo přístupné
- kontaktní mobilní telefon (dohodneme se na způsobu odevzdání plných archů, případně dodání námi vytisknutých peticí)
Zbývá již jen 9 dní!
Děkuji za pomoc
--
Ing. Jan Chvátal
předseda ZČ HB Botič
Středisko ekologické výchovy Hl. m. Prahy Toulcův dvůr
Kubatova 1/32
102 00 Praha 10 - Hostivař
Tel: 271 750 556
Tel: 271 750 548 l. 12 |
|
|
|
|
|
|
|
 |
    |
 |
malina
Spolubydlící


Věk: 74
Založen: 20.2.2006
Příspěvky: 369
Bydliště: NZM B

|
|
A JEŠTĚ JEDNA ZPRÁVA Z TOULCOVA DVORA, TENTOKRÁT VYSVĚTLENÍ CELÉ KAUZY.
Praha 10 usiluje o likvidaci přírodního parku
(Praha) Rada městské části Praha 10 přijala na konci února usnesení, ve kterém se vyslovuje pro masivní obytnou zástavbu takzvané lokality Trojmezí. V podstatě se tak vyslovila pro zničení jedné z největších zelených ploch na svém území.
Lokalita zvaná "Trojmezí" je nezastavěné území o celkové rozloze přes 2 500 000 m2 na pomezí Prahy 10, 11 a 15, obklopené ze všech stran sídlišti Chodov, Spořilov, Záběhlice, Zahradní Město, Hostivař a Košík. Část Trojmezí leží v Přírodním parku Hostivař - Záběhlice. V nivě Botiče se také nalézá Přírodní památka Meandry Botiče a biokoridor Územního systému ekologické stability. „Je to poslední kousek přírody, sevřený ze všech stran paneláky. Pro obyvatele okolních sídlišť je to často jediná možnost kontaktu s přírodou,“ popisuje lokalitu Ing. Jan Chvátal ze Střediska ekologické výchovy hl. města Prahy Toulcův dvůr, unikátního vzdělávacího centra ležícího v bezprostředním sousedství.
Snahy o zastavění této lokality nejsou nové. „Vše začalo asi před pěti lety, kdy se okolní městské části spojily a společně podaly podnět ke změně územního plánu,“ upřesňuje Chvátal. Vzhledem k tomu, že městské části nedodaly včas podklady pro projednávání tohoto návrhu, bylo projednávání celé změny odsunuto.
Od té doby bylo zpracováno několik developerských studií, plánujících zástavbu v přírodním parku. Mediálně nejznámější je bezpochyby studie britského architekta Normana Fostera pro developerskou skupinu MCA, vedenou magnátem Milošem Červenkou. Další studie například navrhovala vznik nové čtvrti na pozemcích patřících skupině ORCO v místech stávajícího sadu - jedné z nejcennějších míst přírodního parku. Žádný z těchto záměrů ale zatím nebyl dotažen do podoby změny územního plánu.
V roce 2007, po přijetí nového stavebního zákona, byly zahájeny práce na zcela novém územním plánu pro celou Prahu. Paralelně jsou projednávány koncepční dokumenty, které mají novému územnímu plánu předcházet. Jedná se například o takzvané Zásady územního rozvoje, které ve své stávající podobě mimo jiné stanovují nezastavitelnost širokého údolí Botiče, tedy součásti přírodního parku Hostivař – Záběhlice. Ještě dál šel první návrh Konceptu nového územního plánu, který v celém území nevymezil prakticky žádné nové zastavitelné plochy. „První návrh Konceptu byl zřejmě studenou sprchou pro megalomanské plány městských částí a developerů. Proto se pokusili na poslední chvíli proces zpracování nového územního plánu obejít a snaží se lokalitu prosadit do takzvaných celoměstsky významných změn,“ říká Chvátal.
Proti těmto změnám již dříve vyjádřila své připomínky různá občanská sdružení zabývající se územním plánováním v Praze. „Hlavním problémem je motiv těchto změn. Tím jsou zjevně zájmy investorů a developerů, nikoliv potřeby města a jeho obyvatel,“ říká Martin Skalský ze sdružení Arnika. Přestože podle původního záměru nemělo během projednávání nového územního plánu k žádným dílčím úpravám toho stávajícího docházet, chystá se v těchto dnech ke schválení již druhá vlna těchto mimořádných změn.
Je jen smutnou ironií osudu, že ohrožení této přírodní lokality přichází těsně po úmrtí Mgr. Emilie Strejčkové, zakladatelky Toulcova dvora a dlouholeté vedoucí odboru životního prostředí právě na úřadu Prahy 10. Emilie Strejčková stála u zrodu tohoto přírodního parku a v posledních letech se aktivně zasazovala o jeho zachování.
Konečné rozhodnutí o tom, zda tento záměr bude projednáván s ostatními celoměstsky významnými změnami, padne na zasedání zastupitelstva hlavního města dne 26. března. Osud této přírodní lokality však mnoha lidem není lhostejný. „Spolupracujeme s celou řadou organizací, o kauzu se zajímají také stovky jednotlivců. Nyní začínáme narychlo distribuovat petici, ve které apelujeme na zastupitele, aby umožnili projednávání budoucnosti této lokality standardní cestou a vyřadili ji z nové vlny celoměstsky významných změn. Petici musíme ukončit do příštího úterý, abychom ji včas stihli odevzdat. Zbývá nám tedy již jen sedm dní! Všechny další informace jsou k dispozici na našich internetových stránkách,“ uzavírá Chvátal.
Zastupitelstvo hlavního města Prahy bude mít na svém nadcházejícím zasedání jedinečnou možnost ochránit rozsáhlou přírodní lokalitu před nátlakem developerů.
Odkazy:
<!--[if !supportLists]-->- <!--[endif]-->informace o vývoji celé kauzy najdete na http://www.toulcuvdvur.cz/trojmezi
<!--[if !supportLists]-->- <!--[endif]-->rozhodnutí rady městské části Praha 10 najdete v příloze tiskové zprávy či na http://www.praha10.cz/mestska-cast/volene-organy/rada-mc/usneseni-rady.aspx
--
Ing. Jan Chvátal
předseda ZČ HB Botič
Středisko ekologické výchovy Hl. m. Prahy Toulcův dvůr
Kubatova 1/32
102 00 Praha 10 - Hostivař
Mob: 603 289 057
Tel: 271 750 556
Tel: 271 750 548 l. 12
Fax: 271 750 548
www.toulcuvdvur.cz
--
Ing. Jan Chvátal
předseda ZČ HB Botič
Středisko ekologické výchovy Hl. m. Prahy Toulcův dvůr
Kubatova 1/32 |
|
|
|
|
|
|
|
 |
    |
 |
manzele
Spolubydlící


Věk: 76
Založen: 12.2.2006
Příspěvky: 286
Bydliště: Nové Zahradní město blok B

|
|
| Apeluji na všechny, přijďte podepsat petici. Do Toulcova dvora to máme blízko, jsou tam určitě i v sobotu a podle rozpisu vlastně i v neděli- je to kratší smysluplná procházka parkem resp,. sadem, který už tu možná v budoucnosti nebude, budeme-li pasivní |
|
|
|
|
|
|
|
 |
    |
 |
malina
Spolubydlící


Věk: 74
Založen: 20.2.2006
Příspěvky: 369
Bydliště: NZM B

|
|
| manzele napsal(a):
|
|
Apeluji na všechny, přijďte podepsat petici. Do Toulcova dvora to máme blízko, jsou tam určitě i v sobotu a podle rozpisu vlastně i v neděli- je to kratší smysluplná procházka parkem resp,. sadem, který už tu možná v budoucnosti nebude, budeme-li pasivní
|
Určitě se tam vydám, vždyt kromě přehrady tady pro všechna rozsáhlá sídliště nezbude žádná zelen. Už ted, když vysvitne sluníčko, to vypadá kolem přehrady jak na májovém pruvodu, projet na kole tam už skoro nejde, všude jsou davy lidí. |
|
|
|
|
|
|
|
 |
    |
 |
greticka
Starousedlík


Věk: 51
Založen: 7.2.2006
Příspěvky: 1097
Bydliště: Mattioliho 11

|
|
| Potvrzuji, že je možné podepsat i během víkendu přímo na Toulcáku. |
|
|
|
|
|
|
|
 |
      |
 |
Banana
Domácí


Založen: 6.5.2005
Příspěvky: 844
Bydliště: Nové Zahradní Město A-západ

|
|
| Tohle je vyvoj, jako my jsme se nastehovali na nase mista, ktere byly plne zelen, tak za par let se lidi budou vesele stehovat do Visnovky, vemte si jak pred stop lety vypadaly napr. Vinohrady... |
|
|
|
|
|
|
|
|
    |
 |
malina
Spolubydlící


Věk: 74
Založen: 20.2.2006
Příspěvky: 369
Bydliště: NZM B

|
|
| Banana napsal:
|
|
Tohle je vyvoj, jako my jsme se nastehovali na nase mista, ktere byly plne zelen, tak za par let se lidi budou vesele stehovat do Visnovky, vemte si jak pred stop lety vypadaly napr. Vinohrady...
|
vývoj ale neznamená uplnou devastaci zeleně, i v těch největších městech jsou mezi sídlišti velké plochy parků, jinak by se tam nedalo dýchat. Vývoj má své meze, za které už nelze jít. Vždyt ty baráky budou možná poloprázdné, skončí silné ročníky a developeři pak nebudou mít komu prodávat. |
|
|
|
|
|
|
|
 |
    |
 |
malina
Spolubydlící


Věk: 74
Založen: 20.2.2006
Příspěvky: 369
Bydliště: NZM B

|
|
Krásný den,
dovolte mi, abych vás informoval o aktualitách v kauze Trojmezí:
!!!PAPÍROVÁ PETICE UKONČENA - POKRAČUJEME NA INTERNETU !!!
Během 11 dnů bylo nasbíráno 12.047 podpisů na 884 petičních arších. Předpokládám, že se toto číslo ještě mírně zvýší o archy, které dorazí zítra. Všem moc děkuji za spolupráci - je to úctyhodný výkon.!!!
Plné petiční archy lze výjimečně ještě dodat na Toulcův dvůr do středy do 13:00 - v případě, že byste toho potřebovali využít, kontaktujte mne prosím na chvatal@toulcuvdvur.cz) - viz info dole (výjimečně lze tyto archy dodat i déle - v případě, že byste toho potřebovali využít, mne prosím kontaktujte)
počet lidí zařazených v informačním mailinglistu se zvedl na 440
stránky www.toulcuvdvur.cz/trojmezi navštívilo včera rekordních cca 1104 lidí!!! Dnes to bude cca o 150 více..
internetovou petici podepsalo na http://zpravodajstvi.ecn.cz/petice/trojmezi/ za dva dny cca 1900 lidí. INTERNETOVOU VERZI PETICE BUDE MOŽNÉ PODEPSAT AŽ DO ČTVRTKA 26.3.2009!!!
Přijďte se ve čtvrtek 26.3. od 9:00 podívat na projednávání budoucnosti Trojmezí na jednání Zastupitelsva hl. města Prahy od 9:00 v Nové radnici, Mariánské náměstí 1, Praha 1. Transparenty a hojná účast vítány!
--------------------------------------------------------------------------------
--------------------------------------------------------------------------------
Děkuji za vaši podporu!
Ing. Jan Chvátal
předseda ZČ HB Botič
Středisko ekologické výchovy Hl. m. Prahy Toulcův dvůr
Kubatova 1/32
102 00 Praha 10 - Hostivař
Tel: 271 750 556
Tel: 271 750 548 l. 12
Fax: 271 750 548
www.toulcuvdvur.cz |
|
|
|
|
|
|
|
 |
    |
 |
malina
Spolubydlící


Věk: 74
Založen: 20.2.2006
Příspěvky: 369
Bydliště: NZM B

|
|
přišel mi dopis z Toulcova dvora - bohužel ačkoliv petici podepsalo víc než 12tis lidí, přesto radní schválili změnu uzemního plánu. přečtěte si to sami:
Krásný den, *
dovolte mi, abych vás informoval o aktualitách v kauze Trojmezí:
* ** *Zastupitelé hlavního města Prahy nepřijali argumentaci
zástupců petice a VYSLOVILI SE PRO VYPRACOVÁNÍ ZMĚNY ÚZEMNÍHO
PLÁNU V TROJMEZÍ.
*
* *Co to znamená? *Bude se pracovat na změně územního plánu odděleně
od paralelního procesu zpracování celého územního plánu. Kdo tuto
změnu bude zpracovávat a jakým způsobem do ní bude moci veřejnost
vstoupit budeme teprv zjišťovat.
* Průběh jednání bych radši ponechal bez komentáře - pokud jste na
něm nebyli, budete si snad o něm moci udělat obrázek sami. Na
místě byly dva regionální štáby ČT1 a Prima. Na Primě by to mohlo
být k vidění v 17:40, na ČT1 pak od 18:00
* DĚKUJI JEŠTĚ JEDNOU VŠEM, KDO SE PETICI PODPOŘILI A KDO SE
PODÍLELI NA JEJÍ ORGANIZACI.
* Pokusím se na celé věci najít alespoň jeden pozitivní aspekt: Je
skvělé, že již všichni víte, že mít kousek přírody za okny není
samozřejmé. Musíte se o ní starat a zajímat se o její budoucnost.
Nepolevte ve svém zájmu!
* Vyzývám zástupce občanských sdružení a dalších kolektivů, kteří
mají zájem se i nadále podílet na kauze Trojmezí, aby se mi
ozvali. Rádi bychom se domluvili na dalším postupu.
S pozdravy
Ing. Jan Chvátal
předseda ZČ HB Botič
Středisko ekologické výchovy Hl. m. Prahy Toulcův dvůr
Kubatova 1/32
102 00 Praha 10 - Hostivař
Tel: 271 750 556
Tel: 271 750 548 l. 12
Fax: 271 750 548 |
|
|
|
|
|
|
|
 |
    |
 |
trueman
Spolubydlící


Věk: 41
Založen: 27.1.2007
Příspěvky: 395
Bydliště: NZM - G

|
|
| No, jedna pozitivni vec je ta, ze alespon jsme se o neco snazili ... Uvidime jak to pujde dal. |
|
|
|
|
|
|
|
 |
     |
 |
manzele
Spolubydlící


Věk: 76
Založen: 12.2.2006
Příspěvky: 286
Bydliště: Nové Zahradní město blok B

|
|
Trojmezí publikovalo nový článek, ''
Aktuální novinky z Trojmezí
http://trojmezi.info/2010/10/06/aktualni-novinky-z-trojmezi-3/
NENECHTE SI UJÍT ve čtvrtek 7.10.2010
- 18:00 naše třetí debata o budoucnosti Trojmezí, tentokrát s politiky
na Praze 10 - ODS zatím nikoho nepotvrdila. Přijde nakonec někdo? Markéta
Reedová za VV přijde podpořit lídra kandidátky na Praze 10.
- dementujeme některé informace z včerejšího předvolebního speciálu
Otázek Václava Moravce! |
|
|
|
|
|
|
|
 |
    |
 |
|
|
Jdi na stránku Předchozí 1, 2, 3
|
Zobrazit následující téma
Zobrazit předchozí téma
Nemůžete odesílat nové téma do tohoto fóra Nemůžete odpovídat na témata v tomto fóru Nemůžete upravovat své příspěvky v tomto fóru Nemůžete mazat své příspěvky v tomto fóru Nemůžete hlasovat v tomto fóru Nemůžete připojovat soubory k příspěvkům Můžete stahovat a prohlížet přiložené soubory
|
Časy uváděny v GMT + 1 hodina
CrackerTracker © 2004 - 2026 CBACK.de
|