| Autor |
Zpráva |
Hafan
Host

Věk: 44
Založen: 22.4.2006
Příspěvky: 118
Bydliště: Stodůlky E

|
|
Ahoj,
ted jsem dostal obchodni slozku s pudorysama a chtel jsem se zeptat.To jste taky dostali tu samou co jste dostali pri nakupu? Dyt tam strasne moc veci chybi, ja mam treba mit nejakej sloup(pravdepodobne nejaka sachta na ventilaci) v kuchynce a jaksi tam chybi jeji rozmery, jak bez toho nemuzu zacit planovat nic.nebo kde se doctu jak budou vyvody v kuchynce kde digestor atd??Psal jsem na konzultacni, ale tam mi rekli ze podrobnejsi plany ma stavebni dozor a stavebni dozor rek ze mi je nemuze ukazat.(A ze ani o moc podrobnejsi nejsou).
Dik. |
|
|
|
|
|
|
|
 |
     |
 |
manzele
Spolubydlící


Věk: 76
Založen: 12.2.2006
Příspěvky: 286
Bydliště: Nové Zahradní město blok B

|
|
| Hafan napsal:
|
Ahoj,
ted jsem dostal obchodni slozku s pudorysama a chtel jsem se zeptat.To jste taky dostali tu samou co jste dostali pri nakupu? Dyt tam strasne moc veci chybi, ja mam treba mit nejakej sloup(pravdepodobne nejaka sachta na ventilaci) v kuchynce a jaksi tam chybi jeji rozmery, jak bez toho nemuzu zacit planovat nic.nebo kde se doctu jak budou vyvody v kuchynce kde digestor atd??Psal jsem na konzultacni, ale tam mi rekli ze podrobnejsi plany ma stavebni dozor a stavebni dozor rek ze mi je nemuze ukazat.(A ze ani o moc podrobnejsi nejsou).
Dik.
|
neni to pravda, samozrejme ze stavebni dozor musi mit velmi
podrobne rozmery, jinak by to ani nemohli postavit. Ja jsem po svem stavebnim dozoru tehdy pozadoval presne rozmery, protoze jsem pak planoval kuchyn a musel jsem vedet, kam dám digestoř, chtěl jsem podle rozměrů kuchyně vědět, kde je ventilační šachta, kde budu moci vést odpad a přívod vody- to jsem vše plánoval na centimetry
Takže rozměry lze získat, jen se člověk nesmí dát otrávit a znechutit.
Dodnes se pamatuji jejich slova: "my nejsme strojaři, my jsme stavaři",
když jsem trval na dodržení přesných rozměrů- museli tenkrát i předělávat zárubeň dveří, protože by se tam kuchyňská linka nevešla
a jejich 10 cm úchylky bylo pro mně neúnosné.
Takže vydržet a chtít podrobnosti- za ty peníze by to mělo být samozřejmostí. Jen s tím mají více práce. Já to tehdy chtěl a emailem jsem z nich přesné rozměy a plány dostal. Také tvrdili, že to nejde.
A také navíc nakonec jsem zjistil, že ty původní plánky byly rozměrově jiné, než ty skutečné, podle kterých stavěli. Pamatuji se na to jako na neklidné údobí mého života- desítky emailů, korekcí, úprav... naakonec to stejně udělali špatně , muselo se to předělévat...... |
|
|
|
|
Naposledy upravil manzele dne 24.8.2006, 11:50, celkově upraveno 1 krát. |
|
 |
    |
 |
lusvec
Domácí

Založen: 27.5.2005
Příspěvky: 942
Bydliště: Záběhlice A

|
|
| Potvrzuju že standardně dávají skoro bezcenný schémátko (v podstatě to co je na webu) a když je člověk neodbytnej tak dostane i plánek s rozměry. Mě ho dal p. Frey z projekce CG. |
|
|
|
|
|
|
|
|
    |
 |
lenkaii
Starousedlík


Věk: 51
Založen: 21.2.2006
Příspěvky: 1537
Bydliště: NZM C

|
|
I my jsme dostali jen "náčrtky" tomu se opravdu nedá říkat plán. Navíc jde o prováděcí dokumentaci, nikoliv o dokumentaci konečného stavu. Takže se v průběhu výstavby může ledacos změnit. Ptala jsem se CG, zda je možno získat dokumentaci podrobnější včetně elektro, odpady a podobně. Samozřejmě za společné prostory, protože na ty máme podle mne nárok.
Bylo mi odpovězeno následující:
-SVJ obdrží složku základní dokumentace (tu už máme, no obsahuje pouze půdorysy pater)
-dokumentace v elektronické podobě v žádném případě, protože je duševním vlastnictvím CG a projekční kanceláře a takhle by šla snadno šířit
-bylo mi přislíbeno dodat prováděcí dokumentaci k rozvodům a dalším věcem (zatím nebylo dodáno) |
|
|
|
|
|
|
|
 |
    |
 |
JoHnY
Administrator


Věk: 49
Založen: 18.10.2005
Příspěvky: 3141
Bydliště: Praha - Bratislava - Závažná Poruba

|
|
cau
takze, toto som dostal pri podpise: http://gallery.johny.sk/byt-info/podorys
toto som dostal v obchodnej zlozke: http://gallery.johny.sk/byt-info/oz1
a toto som si vytiahol z dokumentov ktore nedavno stiahol od central groupu "velky zly hacker" http://johny.sk/byt/vykres.jpg
k tym vyvodom - nebudu ziadne, musis si ich naplanovat ty a este si za to zaplatis... teraz je to tak, predtym davnejsie to bolo tak ze tie vyvody boli a ze si ich mohol len zmenit, a teraz uz je to tak ze si to musis ty naplanovat, vraj preto ze aj tak to kazdy menil...
Stavebny dozor samozrejme plany domu ma a vyzeraju zhruba tak ako na tom mojom poslednom linku, ze ti to nechce ani ukazat tak to teda fakt nechapem a na tvojom mieste by som sa nanho stazoval. Moj stavebny dozor je uplne v pohode a uz niekolkokrat som s nim riesil veci a on vzdy vytiahol tie plany a ukazoval mi to ked nieco nebolo jasne. Takze tento postup tvojho stavebneho dozora nechapem a rozhodne to nie je tak ze by mu CG zakazal ukazovat plany alebo nieco, to pocujem prvy raz.
Takze odporucam ti nanho este viac zatlacit a ak bude stale neochotny tak sa nanho stazovat na klientskom centre alebo tak... |
|
|
|
|
_________________ JoHnY
|
|
 |
      |
 |
Hafan
Host

Věk: 44
Založen: 22.4.2006
Příspěvky: 118
Bydliště: Stodůlky E

|
|
hmm takze ho budu zase prudit.Proste bez podrobnejsich planu se v tom byte neda vubec nic planovat.A navic kdyz tam proste nejaky rozmery uplne chybi.Takze jdu zase napsat dalsi mail.
S tema vyvodama mam teda radost
Dik |
|
|
|
|
|
|
|
 |
     |
 |
MUSTANG
Domácí


Založen: 7.2.2006
Příspěvky: 756

|
|
| my meli na schematku z obchodni slozky a na vykresu, ktery jsme vytahli ze zamestnance A-Keramiky (a sedel s vyslednou realitou) napriklad odlisne smysly otevirani dveri. Podle toho se samozrejme neda naplanovat nic... |
|
|
|
|
|
|
|
|
    |
 |
malina
Spolubydlící


Věk: 74
Založen: 20.2.2006
Příspěvky: 369
Bydliště: NZM B

|
|
| já měla taky veprostřed obýváku šachtu, měla na plánku rozměry 70x90cm, takže jsem plánovala a kreslila, jenže když jsem se pak ptala stavebního dozora kde jsou vývody vody a odpady, tak mi řekl,že prý to zapoměli naplánovat a architekti to musí honem někam přikreslit. Nakonec to dopadlo tak, že vývod vody jde šachtou a pak musí přidělat příčku od sloupu ke stěně 17cm širokou a jak prý ji chci. Rekla jsem si,at ji tedy postaví az do stropu, takže mám kuchynku od obýváku oddělenou zdí s průchodem. Nechtěli za to žádný doplatek protože to byla jejich chyba, ale veškeré rozměry vzaly za své. Musela jsem objednávat kuchyn s atypickýma skřínkama a to je o 40% dražší. Jo asi jsem měla mýt nádobí v koupelně, když do kuchyně původně nezavedli vodu. |
|
|
|
|
|
|
|
 |
    |
 |
malina
Spolubydlící


Věk: 74
Založen: 20.2.2006
Příspěvky: 369
Bydliště: NZM B

|
|
| abych nezapomněla - ve skutečnosti má ta šachta rozměry 74x95cm - je o kus větší. |
|
|
|
|
|
|
|
 |
    |
 |
jtw
Kolemjdoucí


Založen: 13.3.2006
Příspěvky: 29
Bydliště: Mattioliho 3248/11

|
|
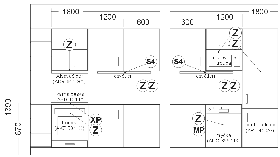
| jako bych tušil, že nějaké takové problémy by mohly nastat, na základě jejich náčrtů jsem zpracoval dokumentaci s podrobnou specifikací elektro (zásuvky, vývody světel, husích krků pro audio apod.), vody a odpadu v kuchyni (nejlépe nárys/bokorys pro kuchyň a půdorys celého bytu) a mohu vám potvrdit, že nejlepší je opřít se o staré známé "co je psáno, to je dáno". Doporučuji ať už vlastními nebo pomocnými silami zakreslit potřebné instalace do schéma a to pak předložit jako dodatek. Není to sice úplně zadarmo, ale když jsem reklamoval vývod vody v kuchyni s dodatkem v ruce (kód MP), který vyvedli v prostoru myčky, vše proběhlo hladce. Přišli, udělali, odešli a hlavně jsem už nic nemusel platit. |
| bokorys.gif |
| Komentář: |
| dvě části kuchyňské linky s definicí umístění spotřebičů, za nimiž NESMÍ být žádný přívod vody, elektřiny nebo odpad |
|
| Velikost: |
33.54 kB |
| Zobrazeno: |
971 krát |

|
|
|
|
_________________ JTW
|
|
|
     |
 |
JoHnY
Administrator


Věk: 49
Založen: 18.10.2005
Příspěvky: 3141
Bydliště: Praha - Bratislava - Závažná Poruba

|
|
| jtw napsal:
|
|
jako bych tušil, že nějaké takové problémy by mohly nastat, na základě jejich náčrtů jsem zpracoval dokumentaci s podrobnou specifikací elektro (zásuvky, vývody světel, husích krků pro audio apod.), vody a odpadu v kuchyni (nejlépe nárys/bokorys pro kuchyň a půdorys celého bytu) a mohu vám potvrdit, že nejlepší je opřít se o staré známé "co je psáno, to je dáno". Doporučuji ať už vlastními nebo pomocnými silami zakreslit potřebné instalace do schéma a to pak předložit jako dodatek. Není to sice úplně zadarmo, ale když jsem reklamoval vývod vody v kuchyni s dodatkem v ruce (kód MP), který vyvedli v prostoru myčky, vše proběhlo hladce. Přišli, udělali, odešli a hlavně jsem už nic nemusel platit.
|
Jasne, odomna sam stavebny dozor chcel pri veciach ktore som menil (zasuvky navyse, husie krky pre repro atd.) aby som mu presne v centimetroch povedal na ktorych to chcem mat, a zakreslil to do toho nakresu aj s kotami. Ani ma nenapadlo ze by to tam mohlo byt bez kot, vsak to by bol riadny bordel. |
|
|
|
|
_________________ JoHnY
|
|
 |
      |
 |
|
|
|
Zobrazit následující téma
Zobrazit předchozí téma
Nemůžete odesílat nové téma do tohoto fóra Nemůžete odpovídat na témata v tomto fóru Nemůžete upravovat své příspěvky v tomto fóru Nemůžete mazat své příspěvky v tomto fóru Nemůžete hlasovat v tomto fóru Nemůžete připojovat soubory k příspěvkům Můžete stahovat a prohlížet přiložené soubory
|
Časy uváděny v GMT + 1 hodina
CrackerTracker © 2004 - 2026 CBACK.de
|